蘇梅島查汶海景別墅:當代熱帶風格的奢華度假天堂

蘇梅島查汶海景服務式別墅以「當代熱帶風格」設計,融合大理石、花崗岩、砂岩和柚木,打造奢華而自然的度假體驗。坐落於查汶高檔地段,依山傍海,坐擁泰國灣美景,是理想的隱世休閒之選

絕佳位置:蘇梅島查汶核心地段

別墅位於蘇梅島查汶,椰林環抱,遠眺帕岸島,距離國際機場、Central Festival購物中心及頂級餐廳僅數分鐘車程,交通便利,完美平衡隱私與便捷。

設計師
Edmond Lai
項目類型:
住宅
日數 :
120個工作日
項目:
蘇梅島查汶海景別墅
風格:
現代熱帶風格
項目年份 :
2020年11月

設計亮點:熱帶奢華與自然融合

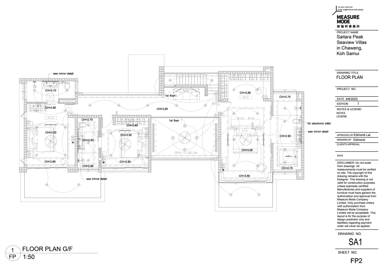
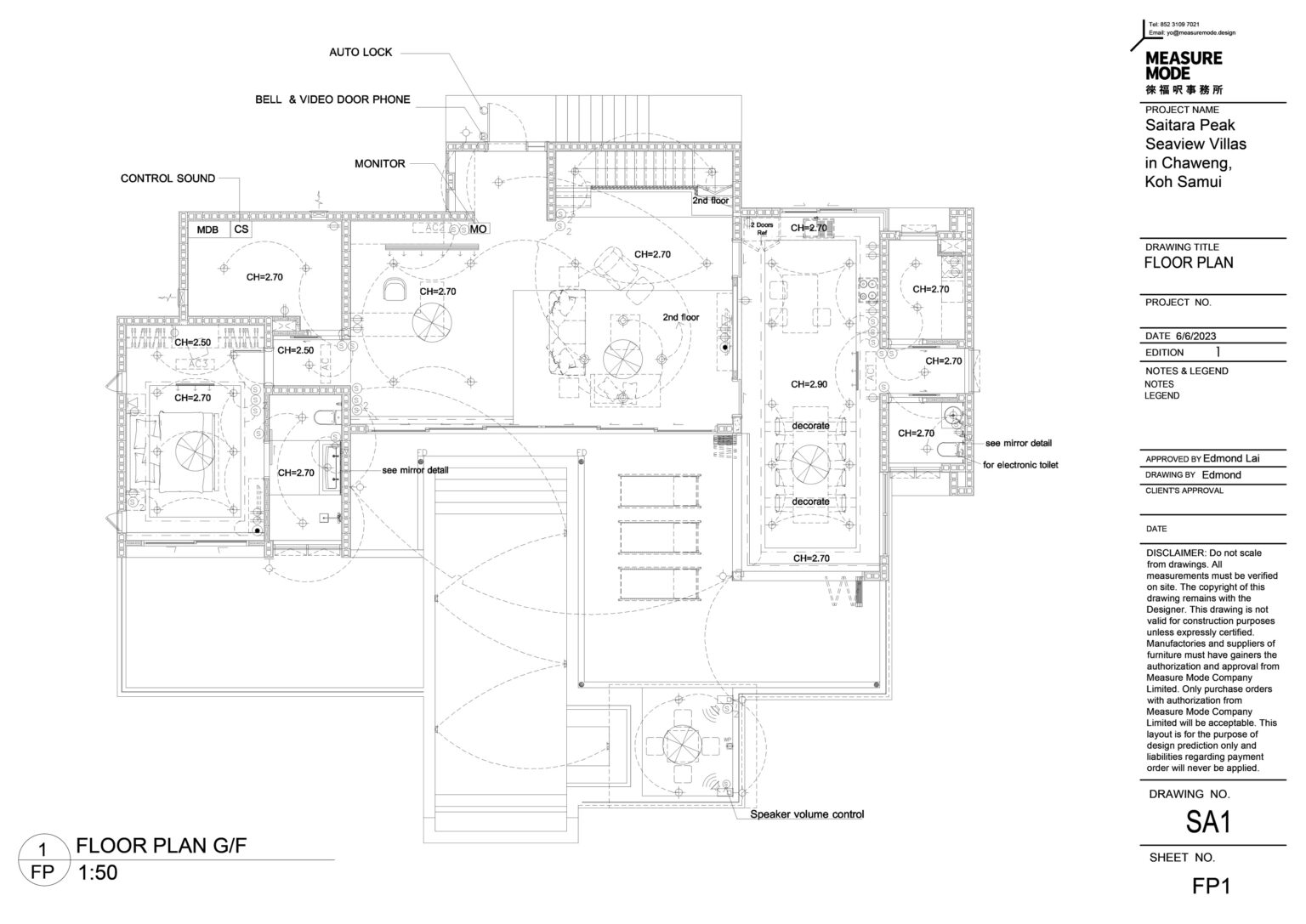
別墅採用白色與木材基調,選用進口大理石、花崗岩、砂岩和柚木,營造熱帶風情。每棟雙層別墅面積501.4至689.27平方米,配備:

  • 4間海景臥室套房,主臥設按摩浴缸與水療浴缸

  • 閣樓式起居區,配家庭影院系統

  • 無邊際泳池與泳池吧台,連通寬敞用餐區

您的夢幻度假之家

蘇梅島查汶海景別墅將創新設計與優質材料完美結合,打造奢華度假體驗。立即預訂,享受泰國灣海景與熱帶風情的絕美假期!

設計師
Edmond Lai
項目類型:
住宅
日數 :
120個工作日
項目:
蘇梅島查汶海景別墅
風格:
現代熱帶風格
項目年份 :
2020年11月

Measure Mode Company Limited –
|Interior Design and Build
棶福伬室內設計裝修事務所 –
先設計 後裝修 

歡迎查詢,
免費馬上報價:

Chat on WhatsApp
Tel: 3709 7021
Website: www.measuremode.design