【不畫設計及施工圖,裝修真的能順利?AI能取代設計師? 內行拆解迷思+實用自救指南】

【不畫設計及施工圖,裝修真的能順利?AI能取代設計師? 內行拆解迷思+實用自救指南】

「裝修不畫設計及施工圖,真的沒問題嗎?現在AI這麼強,是不是連設計師都能省了?」 ——這是很多業主糾結的問題!作為設計師,今天用實戰經驗告訴你:

 

居屋室內設計及裝修
室內設計及裝修

** 何時能跳過設計圖及施工圖?  不畫圖的隱藏風險  AI到底能不能取代人類?**

 1: ** 【不畫圖的可行情境】** **▲ 前提:工程極簡單 + 師傅超資深!**  只換地板/油漆,不動水電格局  家具軟裝佈置,無訂製櫃體  師傅有10年↑經驗,且合作過多次 ** 但!口頭溝通陷阱多** 案例:客戶說「沙發旁要有插座」 ➔ 師傅裝在離地30cm,結果被沙發擋死 ➔ 解法:至少手寫**尺寸+照片標註**
 2: **【不畫圖的3大血淚風險】**  **尺寸偏差**:櫃體差5cm門就打不開  **風格混亂**:瓷磚、燈具各自為政,變四不像  **法規踩雷**:拆到承重牆?AI可不會告訴你違法! (香港改結構需入則申請,罰款高達$50萬↑)

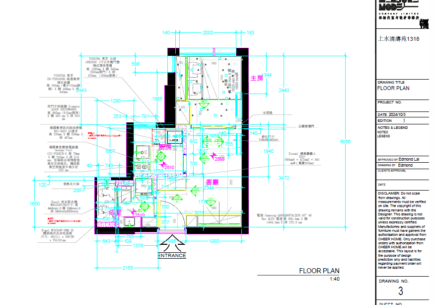
設計圖及施工圖其實圖也是一份文件,清楚列出裝修的施工細節及設計外觀的設計規範。

  1. 設計圖大概是
    • 功能:展示設計的外觀、空間布局和美學風格。
    • 內容
      • 平面圖:顯示空間的布局、傢具擺放和流線設計。
      • 立面圖:展示牆面、天花板、立體外觀等設計細節。
      • 效果圖或3D渲染圖:呈現設計的視覺效果,幫助業主理解最終成果。
      • 色彩方案和材料選擇:指定使用的顏色、材質和表面處理方式。
    • 目的:為業主和設計團隊提供視覺化的設計規範,確保設計理念清晰傳達。
  2. 施工圖
    • 功能:提供具體的施工指導,確保施工團隊能按設計要求執行。
    • 內容大概是
      • 詳細尺寸圖:包括牆體、門窗、傢具等的精確尺寸。
      • 結構圖:顯示承重牆、梁柱等結構細節。
      • 水電圖:標註水管、電線、插座、燈具等位置和規格。
      • 細部大樣圖:針對特殊構造或裝飾部分的詳細說明,例如天花板造型、櫃體結構等。
      • 材料清單:列出所需材料的規格、數量和品牌。
    • 目的:為施工團隊提供技術依據,確保施工質量和安全性。

總結: 設計圖和施工圖雖然功能不同,但相輔相成,共同構成裝修項目的核心文件。設計圖側重於外觀和創意表達,施工圖則注重技術細節和實際操作。兩者結合,確保從設計到施工的每個環節都能精確實現,減少誤解和施工錯誤。

 #室內設計 #香港裝修 #全屋裝修 #徠福呎室內設計 #家居翻新 #智能家電 #全爆單位 #measuremode #智能家居

全面裝修維修專案管理

– 服務範疇簡述如下:

管理服務

  • 預算與報價管理:提供透明報價,涵蓋管理、底材料、人工及潛在附加費用,確保無隱藏成本,平均每平方呎報價約 HKD 850 起 視項目複雜度而定。

品質保證與售後服務

  • 嚴格遵守香港裝修標準,項目竣工後提供專業驗收服務,確保水電、牆面及所有工程達標。

  • 提供工期保證及質量保證,若因承建商原因延誤,承諾按市場租金標準補償(最高不超過項目總費用的 3%)。

  • 提供售後維護服務,確保客戶滿意度。

我們的優勢

  • 專業團隊:擁有超過 10年行業經驗的設計師與項目經理,熟悉香港市場的法規與建築要求。

  • 數位化管理:透過專屬手機應用程式,客戶可實時追蹤項目進度、查看報價及與團隊溝通。

  • 可持續設計:推廣使用節能材料及綠色設計,如 LED 照明及可回收材料,助力打造環保空間。 

Leave a Comment

Your email address will not be published. Required fields are marked *